1/11
435 € / mois charges comprises
Assurance habitation et Assistance* :
18 €
(Tarif 2026)
*Service facultatif. Contribution annuelle « attentats » non comprise
(Voir conditions)
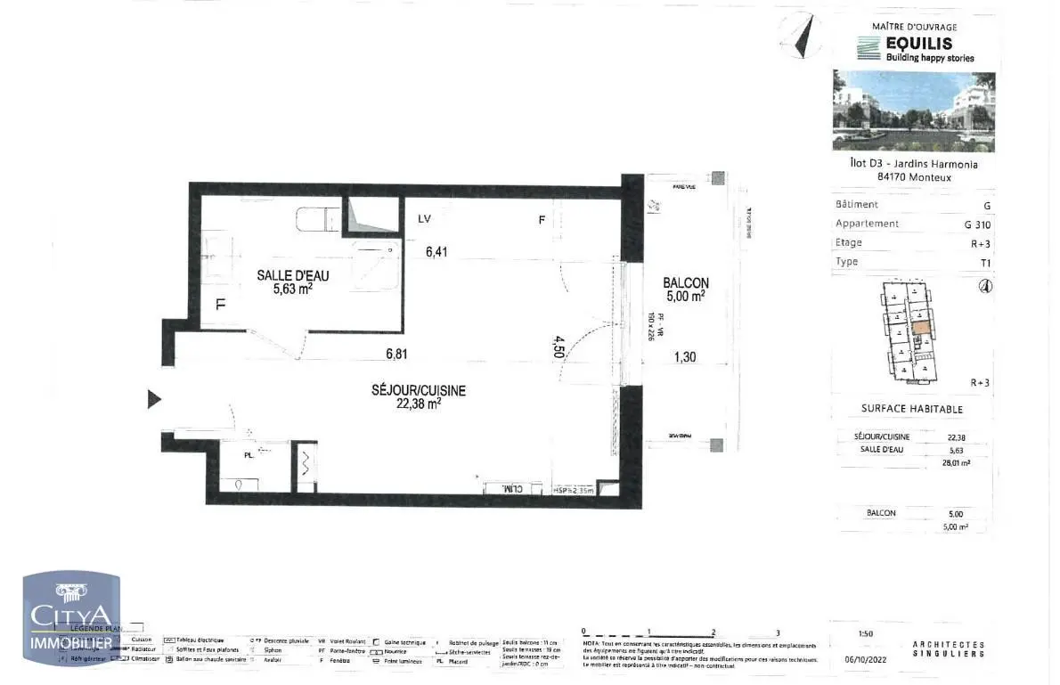
À LOUER SUR PLAN : Appartement T1 climatisé situé à Monteux, proche du Lac, du parc Spirou et du Wave Island, offrant un cadre de vie agréable et pratique. Ce bien dispose d'une surface habitable de 28,79 m².
Cette location se compose comme suit : une agréable pièce à vivre de 24,14 m² ouvrant sur un beau balcon ensoleillé de 4,86 m², une cuisine ouverte aménagée et équipée (plaques et hotte) et une salle d'eau contemporaine avec WC.
L'appartement se trouve au premier étage d'un immeuble avec ascenseur. Une place de parking privative est également prévue dans le loyer.
La localisation à Monteux est un atout majeur, offrant un accès facile aux commodités locales, aux transports en commun et aux services essentiels. Vous pourrez profiter de la proximité des commerces, des écoles et des espaces verts, contribuant ainsi à un cadre de vie agréable.
Cet appartement T1 est une opportunité à ne pas manquer pour ceux qui recherchent un logement pratique et bien situé. N'hésitez pas à nous contacter pour plus d'informations. Le bien est soumis au statut de la copropriété.
Loyer de 435,00 euros par mois charges comprises dont 40,00 euros par mois de provision pour charges (soumis à la régularisation annuelle).
Soit avec Assurance Habitation et Assistance* ( 18.00 euros ) : 453,00 euros.
Les honoraires charge locataire sont de 377,72 euros ( soit 13,12 euros/m² ) dont 87,23 euros pour état des lieux ( soit 3,03 euros/m² ).
Vous pouvez consulter les barèmes d'honoraires à l'adresse suivante :
https://www.citya.com/agences-immobilieres/avignon-84000/224#bareme-location
Les informations sur les risques auxquels ce bien est exposé sont disponibles sur le site Géorisques : https://www.georisques.gouv.fr. *Service facultatif. Contribution annuelle "attentats" non comprise. Voir conditions en agence.
| Location d'habitation ou mixtes (soumis à la loi du 6 juillet 89, Art. 5) | TTC |
|---|---|
| Frais afférents à la visite du preneur, à la constitution de son dossier et à la rédaction du bail : Montant appliqué au preneur et au bailleur selon zone géographique par m² de la surface habitable du logement loué | |
| Zone très tendue | 12,10 €/m² |
| Zone tendue | 10,09 €/m² |
| Zone non tendue | 8,07 €/m² |
| Frais d'établissement d'un état des lieux : Montant appliqué au preneur et au bailleur par m² de la surface habitable du logement loué | 3,03 €/m² |
| Honoraires d’entremise : Montant appliqué au bailleur calculé sur le loyer annuel hors charges | 7,20% |
| Location parking ou garage | TTC |
|---|---|
| Honoraires de location, forfait partagé 50% locataire / 50% bailleur | 258,00 € |
| Location local professionnel ou commercial (à la charge du locataire) | TTC |
|---|---|
| Honoraires de location calculés sur le loyer annuel HC et HT | 25,00% |
| Frais d'établissement d'un état des lieux | Suivant devis diagnostiqueur |
| Ouverture de dossier/entrée locataire | Vacations et débours |
| Honoraires de rédaction d'actes et de renouvellement de bail calculés sur le loyer annuel HC et HT | 5,40% |
| Prix de vente | HT * | TTC * |
|---|---|---|
| Forfaitaire jusqu'à 50 000 € | 4 166,67 € | 5 000,00 € |
| De 50 001 € à 80 000 € | 8,33 % | 10,00 % |
| de 80 001 € à 140 000 € | 7,50 % | 9,00 % |
| de 140 001 € à 170 000 € | 6,67 % | 8,00 % |
| de 170 001 € à 250 000 € | 5,83 % | 7,00 % |
| de 250 001 € à 400 000 € | 5,00 % | 6,00 % |
| Au-delà | 4,17 % | 5,00 % |
| Prix de vente | HT * | TTC * |
|---|---|---|
| Forfaitaire jusqu'à 45 000 € | 3 750,00 € | 4 500,00 € |
| Au-delà | 8,33 % | 10,00 % |
| Prix de vente | HT * | TTC * |
|---|---|---|
| Forfaitaire jusqu'à 25 000 € | 2 083,33 € | 2 500,00 € |
| Au-delà | 8,33 % | 10,00 % |
| Prix de vente | HT * | TTC * |
|---|---|---|
| Tarification des honoraires (Vacation horaire) | 100,00 € | 120,00 € |
* T.V.A : 20 % - Honoraires à la charge du vendeur sauf stipulations contraires prévues au mandat
| Gestion | TTC |
|---|---|
| Honoraires de gestion courante calculés sur les encaissements | 8.40% |
| Assurance loyers impayés, protection juridique et dégradations, calculée sur les sommes quittancées | 3,20% |
| Assurance loyers impayés, protection juridique, dégradations et vacance locative calculée sur les sommes quittancées | 5,60% |
| Gestion technique | TTC |
|---|---|
| jusqu'à 400 € TTC | 40.00 € |
| de 400 à 1000 € TTC | 73.00 € |
| supérieur à 1000 € TTC | 7.20% |
| Pré-visite | Vacations et débours |
| Prestations de bureau et administratives | TTC |
|---|---|
| Frais renouvellement de baux soumis à la loi du 6 juillet 89 (Montant appliqué au preneur et au bailleur) | 138,00 € |
| Prolongation et annulation congé (Locataire) | 48,00 € |
| Frais d'avenant pour modification du bail soumis à la loi du 6 juillet 89 à la demande du locataire | |
| Zone très tendue | 12,10 €/m² |
| Zone tendue | 10,09 €/m² |
| Zone non tendue | 8,07 €/m² |
| Frais mensuel de correspondance (Propriétaire) | 4,20 € |
| Internet (accès espace personnel, consultation compte, règlement...) par mois (Propriétaire) | 3,00 € |
| Déclaration Revenus Fonciers (Propriétaire) | 140,00 € |
| Vacations (taux horaire) : suivi sinistre ou de procédure collective, représentation aux AG, aux expertises, aux commissions de conciliation, gestion du personnel de l’immeuble, constitution de dossiers, clôture de compte… (Propriétaire) | 140,00 € |
| Réalisation des demandes d'autorisation de louer auprès des mairies (suivant communes concernées) | Vacations et débours |
| Archivage dossier annuel (Propriétaire) | 6,00 € |
| Diagnostics techniques | TTC |
|---|---|
| Diagnostic État des Servitudes Risques et d'Information sur les Sols (suivi et réalisation) (Propriétaire)* | 55,20 € |
| Réalisation du Dossier Diagnostics Technique (Propriétaire) | Suivant devis diagnostiqueur |
| Commande et suivi du Dossier Diagnostics Techniques (Propriétaire) | 55,20 € |
| Détecteur Avertisseur Autonome de Fumée (Propriétaire)* | 140,00 € |
| Contentieux | TTC |
|---|---|
| Frais de mise en demeure pour les sommes impayées du locataire (Propriétaire) | 22,00 € |
| Frais de transmission du dossier contentieux à l'huissier (Propriétaire) | 240,00 € |
| Baux commerciaux et professionnels | TTC |
|---|---|
| Honoraires de négociation pour augmentation de loyer bail professionnel et commercial (sur le loyer annuel HC et HT) | 12% |
| Frais d'avenant ou de résiliation anticipée d'un bail commercial ou professionnel (locataire) | Vacations et débours |
| Frais de déclaration TVA par trimestre (Propriétaire) | 96,00 € |
Citya l’Horloge, SARL au capital social de 50 600 € - RCS de Avignon Siren 349759647 - Carte professionnelle N°84012015000000767 délivrée par la C.C.I. Vaucluse - Garanties financières GALIAN-SMABTP - 89 rue La Boétie Paris - Numéro Orias 14004129 - SIRET 34975964700077 - TVA Intracommunautaire FR77349759647
Cette Société est soumise à la loi n°70-9 du 2 janvier 1970 ainsi qu’à son décret d’application n°72-678 du 20 juillet 1972 réglementant les conditions d’exercice des activités relatives à certaines opérations portant sur les immeubles et les fonds de commerce.
Conformément à l’article L 611-1 du code de la consommation, le consommateur - au sens de l’article liminaire du code de la consommation - est informé qu’il a la possibilité de saisir un médiateur de la consommation dans les conditions prévues aux articles L 611-1 et suivants du code de la consommation.
Le consommateur peut saisir le médiateur MEDIMMOCONSO de deux manières :
Le consommateur peut saisir le service CITYA QUALITE de deux manières :