1/10
1 729,90 € / mois charges comprises
Assurance habitation et Assistance* :
24 €
(Tarif 2026)
*Service facultatif. Contribution annuelle « attentats » non comprise
(Voir conditions)
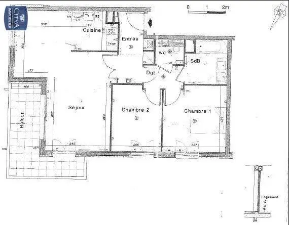
À LOUER - T3 MEUBLE SUR FERNEY VOLTAIRE 01210 - DISPONIBLE DEBUT MARS 2026
Découvrez ce charmant appartement de type T3 situé à Ferney Voltaire, une ville dynamique et accueillante. Avec une superficie de 68 m², cet espace de vie lumineux et moderne est idéal pour une petite famille ou un couple à la recherche de confort et de praticité.
L'appartement se trouve au troisième et dernier étage d'un immeuble avec ascenseur, offrant ainsi une vue dégagée et une tranquillité appréciable. Vous serez séduit par son agencement optimisé, comprenant deux belles chambres spacieuses, parfaites pour se reposer après une longue journée. Le salon, convivial et lumineux, est l'endroit idéal pour se détendre ou recevoir des amis.
La cuisine est entièrement équipée, vous permettant de préparer de délicieux repas en toute simplicité. Le chauffage individuel au gaz, avec des radiateurs, garantit une chaleur agréable tout au long de l'année, vous assurant un confort optimal.
Pour votre commodité, l'appartement dispose également d'une salle de bain moderne et fonctionnelle, ainsi que d'un espace de stationnement privé, un atout précieux dans cette région. De plus, vous bénéficierez d'une cave pour le rangement de vos affaires.
Situé dans un quartier résidentiel, cet appartement est proche des commodités, des transports en commun et des espaces verts, vous offrant ainsi un cadre de vie agréable et pratique. N'attendez plus pour visiter ce bien qui pourrait devenir votre nouveau chez-vous .. Le bien est soumis au statut de la copropriété.
Le bien est à louer par l'intermédiaire de l'agent commercial Cecile DIAZ.
Loyer de 1 729,90 euros par mois charges comprises dont 70,00 euros par mois de provision pour charges (soumis à la régularisation annuelle).
Soit avec Assurance Habitation et Assistance* ( 24.00 euros ) : 1 753,90 euros.
Les honoraires charge locataire sont de 892,32 euros ( soit 13,00 euros/m² ) dont 207,98 euros pour état des lieux ( soit 3,03 euros/m² ).
Vous pouvez consulter les barèmes d'honoraires à l'adresse suivante :
https://www.citya.com/agences-immobilieres/saint-genis-pouilly-01630/584#bareme-location
Montant estimé des dépenses annuelles d'énergie pour un usage standard : entre 410 et 600 euros. Prix moyens des énergies indexés en 2023. Les informations sur les risques auxquels ce bien est exposé sont disponibles sur le site Géorisques : https://www.georisques.gouv.fr. *Service facultatif. Contribution annuelle "attentats" non comprise. Voir conditions en agence.
| Location d'habitation ou mixtes (soumis à la loi du 6 juillet 89, Art. 5) | TTC |
|---|---|
| Frais afférents à la visite du preneur, à la constitution de son dossier et à la rédaction du bail : Montant appliqué au preneur et au bailleur selon zone géographique par m² de la surface habitable du logement loué | |
| Zone très tendue | 12,10 €/m² |
| Zone tendue | 10,09 €/m² |
| Zone non tendue | 8,07 €/m² |
| Frais d'établissement d'un état des lieux : Montant appliqué au preneur et au bailleur par m² de la surface habitable du logement loué | 3,03 €/m² |
| Honoraires d’entremise : Montant appliqué au bailleur calculé sur le loyer annuel hors charges | 7,20% |
| Location parking ou garage | TTC |
|---|---|
| Honoraires de location, forfait partagé 50% locataire / 50% bailleur | 258 € |
| Location local professionnel ou commercial (à la charge du locataire) | TTC |
|---|---|
| Honoraires de location calculés sur le loyer annuel HC et HT | 25,00% |
| Frais d'établissement d'un état des lieux | Suivant devis diagnostiqueur |
| Ouverture de dossier/entrée locataire | Vacations et débours |
| Honoraires de rédaction d'actes et de renouvellement de bail calculés sur le loyer annuel HC et HT | 5,40% |
| Prix de vente | HT * | TTC * |
|---|---|---|
| Forfaitaire jusqu'à 50 000 € | 4 166,67 € | 5 000,00 € |
| De 50 001 € à 80 000 € | 8,33 % | 10,00 % |
| de 80 001 € à 140 000 € | 7,50 % | 9,00 % |
| de 140 001 € à 170 000 € | 6,67 % | 8,00 % |
| de 170 001 € à 250 000 € | 5,83 % | 7,00 % |
| de 250 001 € à 400 000 € | 5,00 % | 6,00 % |
| Au-delà | 4,17 % | 5,00 % |
| Prix de vente | HT * | TTC * |
|---|---|---|
| Forfaitaire jusqu'à 45 000 € | 3 750,00 € | 4 500,00 € |
| Au-delà | 8,33 % | 10,00 % |
| Prix de vente | HT * | TTC * |
|---|---|---|
| Forfaitaire jusqu'à 25 000 € | 2 083,33 € | 2 500,00 € |
| Au-delà | 8,33 % | 10,00 % |
| Prix de vente | HT * | TTC * |
|---|---|---|
| Tarification des honoraires (Vacation horaire) | 100,00 € | 120,00 € |
* T.V.A : 20 % - Honoraires à la charge du vendeur sauf stipulations contraires prévues au mandat
| Gestion | TTC |
|---|---|
| Honoraires de gestion courante calculés sur les encaissements | 8,40% |
| Assurance loyers impayés, protection juridique et dégradations, calculée sur les sommes quittancées | 3,20% |
| Assurance loyers impayés, protection juridique, dégradations et vacance locative calculée sur les sommes quittancées | 5,60% |
| Gestion technique | TTC |
|---|---|
| jusqu'à 400 € TTC | 33,60 € |
| de 400 à 1000 € TTC | 70,80 € |
| supérieur à 1000 € TTC | 6,00% |
| Pré-visite | Vacations et débours |
| Prestations de bureau et administratives | TTC |
|---|---|
| Frais renouvellement de baux soumis à la loi du 6 juillet 89 (Montant appliqué au preneur et au bailleur) | 138,00 € |
| Prolongation et annulation congé (Locataire) | 48,00 € |
| Frais d'avenant pour modification du bail soumis à la loi du 6 juillet 89 à la demande du locataire | |
| Zone très tendue | 12,10 €/m² |
| Zone tendue | 10,09 €/m² |
| Zone non tendue | 8,07 €/m² |
| Frais mensuel de correspondance (Propriétaire) | 4,20 € |
| Internet (accès espace personnel, consultation compte, règlement...) par mois (Propriétaire) | 2,40 € |
| Déclaration Revenus Fonciers (Propriétaire) | 138,00 € |
| Vacations (taux horaire) : suivi sinistre ou de procédure collective, représentation aux AG, aux expertises, aux commissions de conciliation, gestion du personnel de l’immeuble, constitution de dossiers, clôture de compte… (Propriétaire) | 138,00 € |
| Réalisation des demandes d'autorisation de louer auprès des mairies (suivant communes concernées) | Vacations et débours |
| Archivage dossier annuel (Propriétaire) | 4,80 € |
| Diagnostics techniques | TTC |
|---|---|
| Diagnostic État des Servitudes Risques et d'Information sur les Sols (suivi et réalisation) (Propriétaire)* | 55,20 € |
| Réalisation du Dossier Diagnostics Technique (Propriétaire) | Suivant devis diagnostiqueur |
| Commande et suivi du Dossier Diagnostics Techniques (Propriétaire) | 55,20 € |
| Détecteur Avertisseur Autonome de Fumée (Propriétaire)* | 138,00 € |
| Contentieux | TTC |
|---|---|
| Frais de mise en demeure pour les sommes impayées du locataire (Propriétaire) | 21,60 € |
| Frais de transmission du dossier contentieux à l'huissier (Propriétaire) | 240,00 € |
| Baux commerciaux et professionnels | TTC |
|---|---|
| Honoraires de négociation pour augmentation de loyer bail professionnel et commercial (sur le loyer annuel HC et HT) | 12% |
| Frais d'avenant ou de résiliation anticipée d'un bail commercial ou professionnel (locataire) | Vacations et débours |
| Frais de déclaration TVA par trimestre (Propriétaire) | 96,00 € |
Citya Richerd Immobilier, SARL au capital social de 15 048 € - RCS de Bourg-en-Bresse Siren 812252815 - Carte professionnelle N°01012015000000485 délivrée par la C.C.I. Ain - Garanties financières GALIAN-SMABTP - 89 rue La Boétie Paris - Numéro Orias 17002075 - SIRET 81225281500038 - TVA Intracommunautaire FR20812252815
Cette Société est soumise à la loi n°70-9 du 2 janvier 1970 ainsi qu’à son décret d’application n°72-678 du 20 juillet 1972 réglementant les conditions d’exercice des activités relatives à certaines opérations portant sur les immeubles et les fonds de commerce.
Conformément à l’article L 611-1 du code de la consommation, le consommateur - au sens de l’article liminaire du code de la consommation - est informé qu’il a la possibilité de saisir un médiateur de la consommation dans les conditions prévues aux articles L 611-1 et suivants du code de la consommation.
Le consommateur peut saisir le médiateur MEDIMMOCONSO de deux manières :
Le consommateur peut saisir le service CITYA QUALITE de deux manières :